Vous êtes ici : Accueil > Actualités

Actualités

Le 06 mars 2024
La phase d’Étude d’esquisse combine à la fois des aspects créatifs et techniques pour définir les bases de votre projet architectural, en tenant compte de vos besoins, des contraintes réglementaires, et de votre budget.
Le 11 janvier 2018
Restructuration et extension d'une maison de ville, Pour en savoir plus https://www.rdb-architectes.com/logement-individuel_cl1.html?categorie1=1 Crédit photographique: Michel Ogier http://www.michelogier.net/, https://www.facebook.com/michel.og
Le 18 septembre 2015
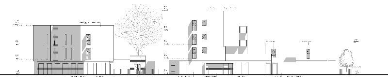
L'agence rdb architectes a été retenue pour le projet d'extension, de restructuration et de réhabilitation des salles polyvalentes du domaine de la Sansonnière à ...
Le 07 avril 2015
Réalisation de deux maisons individuelles Lieu / Avrillé - 49 - Maine et Loire Etudes en cours, permis de construire fin avril 2015 Ossature brique pour les rez-de-chaussée Ossature bois pour les étages Constructions labellisées Batiment Basse Con
Le 12 mars 2015
Suite à la consultation des entreprises, le chantier des Ganivelles commencera mi-avril 2015.Livraison prévue des 21 logements (individuels, intermédiaires et collectifs) en janvier 2017.Lieu / ...
« 1 2 3 »